Đấu giá Thụy Lâm LK4 huyện Đông Anh Hà Nội ngày 31/03/2024
- đ3.3Tỷ/Căn
Đấu giá Thụy Lâm LK4 huyện Đông Anh Hà Nội ngày 31/03/2024
- đ3.3Tỷ/Căn
Bao Quát
- VN2235206
- Đất Nền
- 0
- 0
- 0
- 87 m²
- 87 m²
Mô tả chi tiết
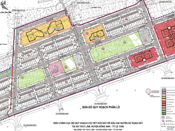
Lịch đấu giá đất dãy LK4 xã Thụy Lâm huyện Đông Anh Hà Nội ngày 31/03/2024
Chủ đầu tư: Ban Quản Lý Dự Án huyện Đông Anh
Quy mô: LK4 gồm 40 lô đất , diện tích từ 87.5m2 đến 144.5m2
Giá khởi điểm: từ 23.5tr/m2 đến 24.5tr/m2
Thời gian đấu giá: 8h30 ngày 31/03/2024 (Chủ Nhật) tại Trung tâm chính trị huyện Đông Anh
Khu đấu giá Thụy Lâm, Đông Anh toạ lạc trên mặt đường liên xã Thư Lâm nối từ trung tâm huyện đến xã Thụy Lâm. Cách UBND huyện chỉ 5km
Hạ tầng khu đấu giá cực kì VIP: vỉa hè rộng 5m, lát đá, đường trải nhựa, tủ điện hạ ngầm, cây xanh nội khu cực kỳ mát mẻ.
Bãi đỗ xe, công viên lớn trung tâm, khu vui chơi ngay bên cạnh, tiện ích xung quanh đầy đủ không thiếu thứ gì.
Vị trí gần trung tâm hành chính xã Thụy Lâm, cách 200m ra trường mầm non, trường cấp 1, cấp 2 Thụy Lâm, gần chợ dân sinh và kinh doanh sầm uất
Chưa bao giờ ở Đông Anh lại có đất đấu giá với giá rẻ như thế này, cơ hội mua đầu tư để x2 x3 giá trị lô đất trong năm con rồng 2024
Diệu Linh : 0353.239.087
Văn phòng giao dịch BĐS Đất Đông Anh
Địa chỉ: số 153A tổ 4 thị trấn Đông Anh
Chi Tiết
Updated on March 29, 2024 at 6:05 pm-
Mã Đăng VN2235206
-
Giá đ3.3Tỷ/Căn
-
Diện tích nhà 87 m²
-
Diện tích đất 87 m²
-
P.Ngủ 0
-
P.Tắm 0
-
Nhà Xe 0
-
Loại BĐS Đất Nền
-
Hiện Trạng Mua Bán
Địa Chỉ
-
Thành Phố: Đông Anh
-
Tỉnh Thành: Hà Nội
-
Quốc Gia: Việt Nam
Tính trả góp
Hàng tháng
-
Tiền Cọc
-
Tiền Vay
-
Tiền nhà trả hàng tháng
Tiện ích xung quanh khu vực
Thông tin liên lạc
Xem bài đăng0 Review
Sort by:
BĐS tương tự
- Đất Nền
- đ8Tr/Căn
- Đất Nền
- đ2.8Tỷ/Căn
- Đất Nền
- đ27.3Tỷ/Căn


